
FACS 241: ARCHITECTURAL DRAFTING
Doors and window Schedule

The goal of this assignment was to hand-draw different style doors well and accurately while identifying the parts of a door.
Kitchen
eLEVATIONS

The assignment above feature an elevation of kitchen cabinets. The goal of this project was to learn how to draw kitchen set ups with the appropriate code requirements applied.
Stair section

The stair section exercise was definitely the most challenging in this course. Having to get the angles just right while making sure the stairs and railing heights and lengths were up to code created a good challenge. I enjoyed getting to see my progress on this exercise.
bUILDING SECTION

The purpose of this assignment was to learn how to draw a plan on the spot with no tools or softwares for when clients or others working on a project may ask to see a plan on the site.
wall
type

The wall type drawing allowed us to see and be able to identify each part of a wall type .
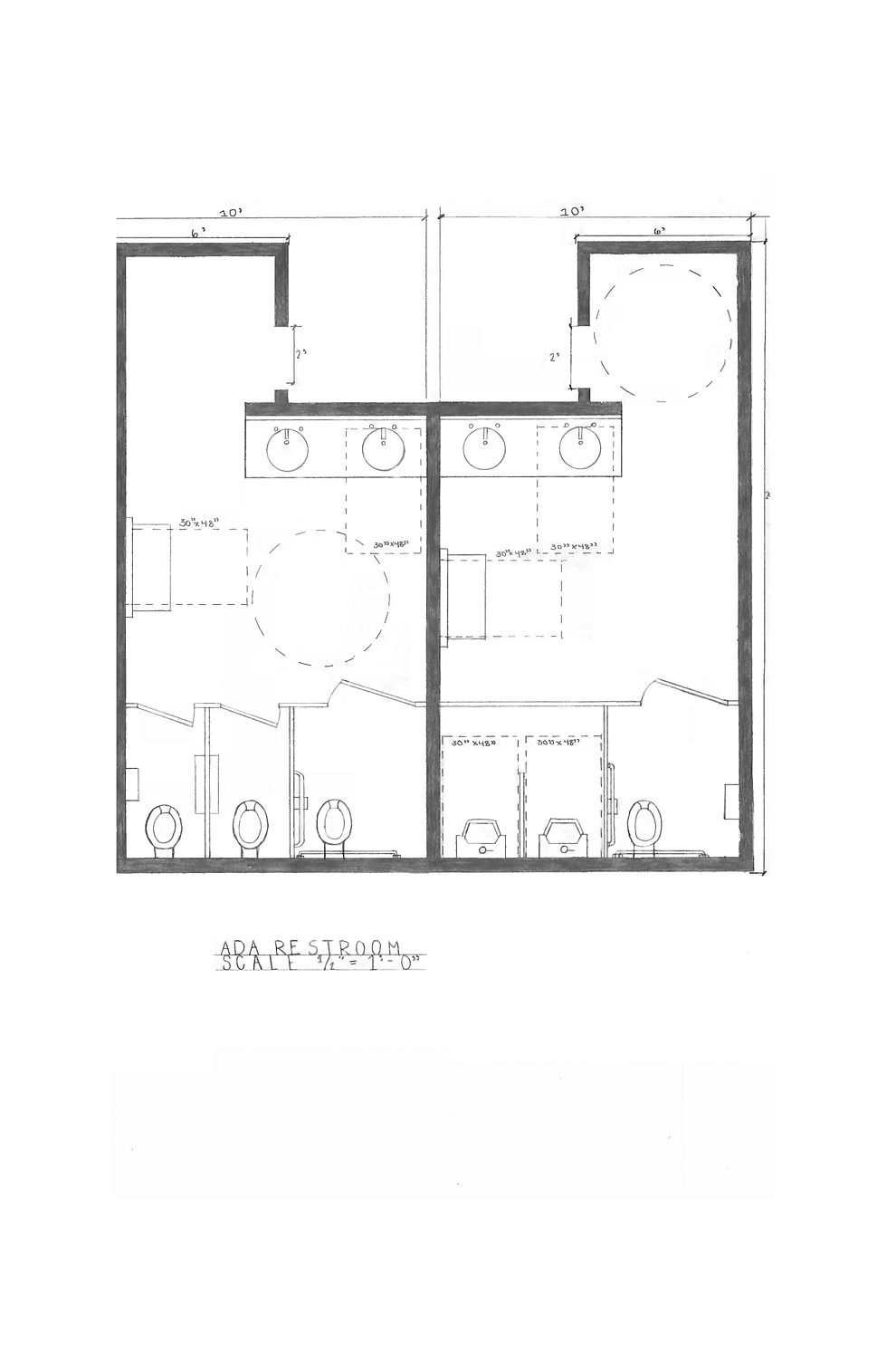
ada bathroom

The ADA bathroom assignment helped us to design with the needs of others in mind by applying ADA codes.

The elevation shows the ADA grabs bars as well as a fun tile pattern on the wall that was recommended to be at a specific height.
the palmer home

The Palmer Apartment/ Home project was so much fun to design. The objective of this assignment was to take an existing floorpan and make changes to it that would better suite the owner's needs while creating a furnished floor plan, a ceiling plan, elevation, section and detail drawings, and door selections.

The image above shows my demolition plan to the original plan. I chose to open up the kitchen to the living room to create more of an open space. I moved the laundry area and made a new space for it along with a pantry. Additionally, I removed the sunroom since there was already a balcony to be able to open up and enlarge the space for the master bedroom.

The sketched floorpan shows the master bedroom with a reading corner by the windows, a walk in closet, bathroom, and a guest bedroom beside the living space. An open kitchen that flows into the dining area and the living space is seen, as well as the added section for the pantry and laundry.

The ceiling plan shows wood beams throughout the living room and dining space. I chose to do a modern tray ceiling in the master bedroom to print a different look into the room from the public space ceilings. Incandescent lights are seen throughout the home. The dining space has a contemporary modern 3 light rectangle chandelier above the dining table.

Elevation A shows white glass mullion cabinets on the top and light stained oak solid base cabinets with bronze pulls. The backsplash contains a gray-toned arabesque marble tile for accents and ceramic subway tiles. Elevation B has white shaker wall cabinets with bronze pulls and the same backsplash selections for Elevation A. White crown molding is used to bring the design together.

Sections 1,2, and 4 show the details of the various glass mullion cabinets on top seen in Elevation A. Section 3 is seen on both Elevation A and B as the base cabinets. Sections 5 & 6 show the details of the wall cabinets in Elevation B.

The schedule above shows the door selections for the Palmer Home. Window A is a sketch of an oil rubbed bronze window. The entry door is a dark oak brown with paneled details. Numbers 2 and 3 are contemporary shaker style doors in taupe. The closet door is a shaker style door with frosted paneling. The balcony door is a statement door that adds a contemporary modern style to the home while being a great source of natural lighting for the home.