
FACS 243: DIGITAL DRAFTING 1
HAWTHORNE PROJECT
The Hawthorne Project includes various design documents created through AUTOCAD that are used in the design process. The goal of this project was to remodel the existing house into a more up-to-date style to attract a young 20th century family while keeping in mind the cost of renovations.

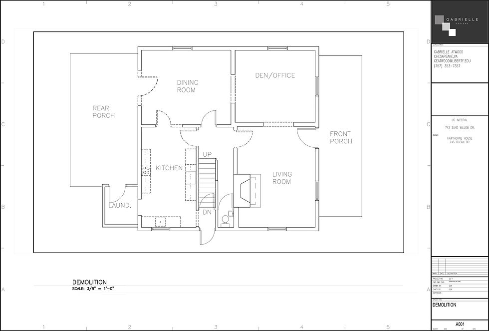
In order to make the space more fluid and open, I decided to demolish some of the existing doors.

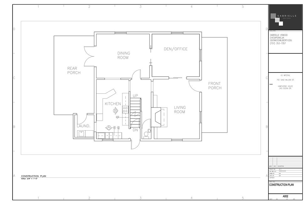
I chose to include sliding and pocket doors to be able to have the option to close off a room for privacy matters. A French door was added to let in natural lighting. The kitchen was redesigned into a unique yet functional layout.

This plan features suggested furniture layouts in addition to how the space can be used. For example, the den was turned into an office space that can also be used as a den.

The elevations show a traditional yet contemporary farmhouse design. White mullion glass cabinets are seen as the top cabinets. The base cabinets are an oak stained wood. A light pearl-like marble is featured in the backsplash.

The details feature a wall type, cabinets with adjustable plywood shelves, base cabinets with drawers, and mullion cabinets.

Features a gypsum wall board.

Features glass inserts as well as the crown molding.

Base Cabinet with three drawers.

Base cabinet with a top drawer and adjustable plywood shelves on the bottom half.